Конструкции и несущие элементы

Альбом технических решений. Конструкция алюминиевой навесной фасадной системы с воздушным зазором «Симплекс-А-0з» для облицовки композитными кассетами (DWG)

0
0
Обзор

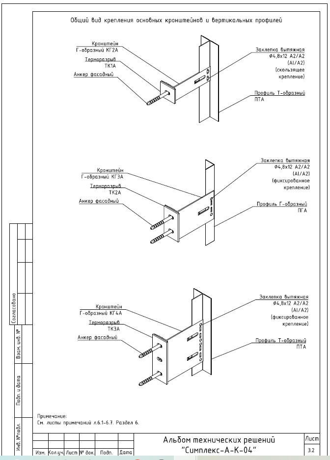
Композит — это архитектурная свобода. Пластичность материала, лёгкость и широчайшая палитра цветов позволяют реализовывать фасады любой геометрической сложности: от строгой сетки офисных зданий до плавных кривых линий объектов будущего. Но реализовать эту свободу без потери надёжности способна только выверенная до миллиметра несущая система. Алюминиевая подсистема «Симплекс - А - 03» — это инженер...

Показать больше
Автор продукта
Simplexfasad
Simplexfasad
На портале с
Телефон
Электронный адрес
Альбом технических решений. Конструкция алюминиевой навесной фасадной системы с воздушным зазором «Симплекс-А-0з» для облицовки композитными кассетами (DWG)
Simplexfasad
Телефон
Электронный адрес