Оборудование для систем водоснабжения и водоотведения

Тройники с одним боковым фланцем

0
0
Обзор

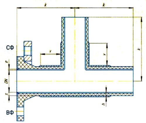
Тройники фланцевые используются для разделения главной линии трубопровода на несколько ответвлений. Могут применяться для крепления оборудования и арматуры. Тройник с фланцами присоединяется с помощью крепежных болтов.

Документация к продукту
Автор продукта
МеталлПластМонтаж
МеталлПластМонтаж
На портале с
Телефон
Электронный адрес
Тройники с одним боковым фланцем
МеталлПластМонтаж
Телефон
Электронный адрес