Двери противопожарные производства НПО «ПУЛЬС» со стыковочными узлами

views
135 просмотров
Двери противопожарные металлические ДПМ-Пульс-01/60К (EI 60), ДПМ-Пульс-01/60К (EIS 60), ДПМ-Пульс-02/60 (EI 60) и ДПМ-Пульс-02/60 (EIS 60) (далее ДПМ) предназначены для заполнения строительных проемов в противопожарных преградах зданий и сооружений различного назначения. Согласно таблице 24 Приложения к Федеральному закону от 22.07.2008 N 123-ФЗ "Технический регламент о требованиях пожарной безопасности" данные ДПМ относятся к заполнениям 1-го типа (предел огнестойкости EI 60 и EIS 60).
Двери противопожарные производства НПО «ПУЛЬС» со стыковочными узлами

Одним из вариантов сертифицированного исполнения этих дверей является возможность оснащения одним или двумя стыковочными узлами типа «УС-1вп (ТУ 4854-019-13358737-11, ООО «АСС») к дымососу.

                            Применение этой системы позволяет:

-  быстро и эффективно бороться с вредными последствиями пожара

-  осуществлять глубокую очистку помещения от опасных соединений, образующихся во время горения.

image-0
image-1
image-2

Что такое стыковочный узел 

Узел стыковочный УС-1вп®  – это специальное огнестойкое техническое устройство, установленное в двери защищаемого помещения, обеспечивающее подсоединение дымососа и организацию в противопожарной двери безопасного канала для удаления дыма, газообразных продуктов горения, огнетушащего газа, витающих частиц порошка и аэрозоля из аварийного помещения после действия автоматической установки газового, порошкового или аэрозольного тушения.

image-0

Рекомендуемое количество стыковочных узлов в двери – два, т.к. именно такое решение наиболее эффективно в части дымоудаления.

При необходимости, возможна также и установка одного узла.

Габаритные размеры узла стыковочного УС-1вп, установленного в дверь: 360*360*105,8мм

Расположение стыковочных узлов

Базовое расположение стыковочных узлов в дверной створке по высоте и ширине рассчитано на наиболее оптимальный вариант подключения дымососа, при этом ориентация стыковочного узла отдается на решение Заказчика.

Как правило, противопожарная дверь открывается из помещения, поэтому наиболее востребованное решение – дверца стыковочного узла (сторона подключения дымососа) располагается со стороны дверных петель. В двупольной двери, при этом, стыковочные узлы штатно располагаются в замковой (рабочей) створке. Однако, под заказ, возможно и другое расположение и/или ориентация узлов.

Открывание двери и открывание стыковочных узлов 

Так как установка узлов производится только в заводских условиях, то при заказе необходимо уточнять расположение дверцы узла относительно стороны открывания двери.

Расположение дверцы стыковочного узла определяется в зависимости от помещения, в котором предполагается порошковое пожаротушение. Дверца должна находиться снаружи такого помещения для возможности установки дымососа. При этом, если дверь открывается из этого помещения, то дверца стыковочного узла должна быть расположена со стороны петель двери.

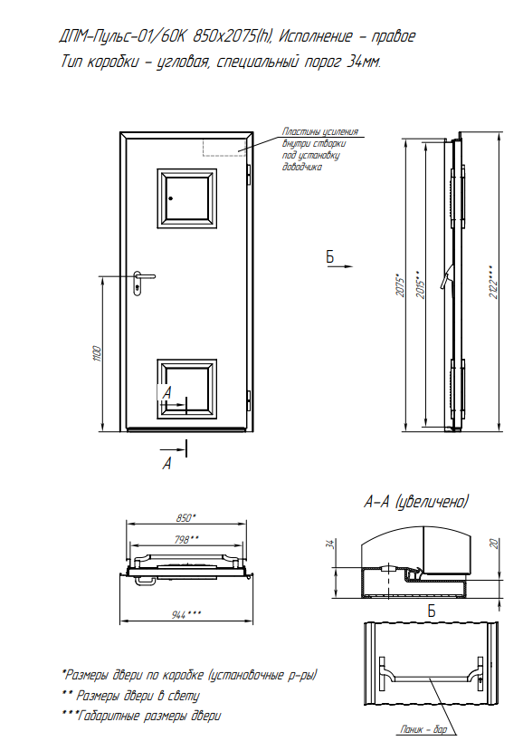
Схема двери с узлами стыковочными на примере ДПМ-ПУЛЬС-01/60К                 

image-0

Характеристики

image-0

Где применяются двери с узлами стыковочными

Двери со стыковочными узлами предназначены для установки в следующих типах помещений:

  • Машинные залы ЦОД
  • Архивы
  • Помещения серверных, электрощитовых
  • Другие помещения, оснащенные автоматической установкой газового, порошкового или аэрозольного тушения.

Цвет

ДПМ окрашивается эпокси-полиэфирной порошковой краской в цвета по таблице RAL, структура краски – «Шагрень». Стандартные цвета – RAL9016 (белый) и RAL7035 (серый).

Под заказ возможно окрашивание в другие цвета по RAL или в дизайнерские цвета вне таблицы RAL, со структурой «Муар» или с гладким покрытием. Возможна окраска коробки и створки одного изделия в разные цвета. Под заказ возможно изготовление ДПМ из оцинкованной или нержавеющей стали.

Вся продукция, выпускаемая НПО Пульс, сертифицирована.  Система менеджмента качества соответствует требованиям ГОСТ Р ИСО 9001-2015.

Более подробная информация о данной продукции на нашем сайте:  Противопожарные двери со стыковочным узлом УС-1 (АССпас)

Наши контакты: +7 (495) 988 10 01, e-mailpps@npopuls.ru

1
0