Интерактивное проектирование с компанией «Альтернатива»

Мир стремительно меняется. Так, например, за последние 1,5 года дистанционное образование и удалённый формат работы стали массовыми явлениями, а развитие услуг, таких как доставка товаров повседневного спроса, сервисы такси и другие, значительно упростили нашу жизнь.
Научно-технический прогресс не стоит на месте: появляются новые материалы, совершенствуются технологии, что помогает повысить эффективность в различных сферах. В частности, сферами, претерпевшими в последнее время значительные изменения, стали – проектирование и черчение, которые всё больше идут по направлению к информационному моделированию.
Обратимся к ретроспективе
- В докомпьютерные времена проектирование выполнялось на бумаге. При этом были написаны многочисленные ГОСТы, СНиПы, и СП, которые стандартизировали эту отрасль, позволяя всем участникам процесса говорить на одном языке.
- В 70-х годах прошлого столетия проектирование пошло дальше и перешло в так называемые САПР-программы, под которыми подразумевался «Электронный кульман», существенно облегчивший часть процессов по выпуску чертежей и проектов. В то же время зародилась идея информационного моделирования, но практическое применение началось лишь около 2-х десятков лет назад (примерно 2000-е).
Сейчас уже смело можно говорить о результатах внедрения новых технологий, так, например, выросла доля сложных в проектировании и строительстве зданий и сооружений, которые пришли на смену типовому строительству.


Информационное моделирование
Информационное моделирование – это совершенно новый подход к созданию чертежей, который позволяет визуализировать архитектуру и отдельные участки будущего здания. В начале создаётся цифровая 3D-модель, из которой получают проекции, разрезы, сборки с последующим оформлением в «чертежи».
Передовые производители строительных материалов и оборудования взяли эту технологию на вооружение и оцифровали свою продукцию. Одна из таких компаний – Альтернатива.
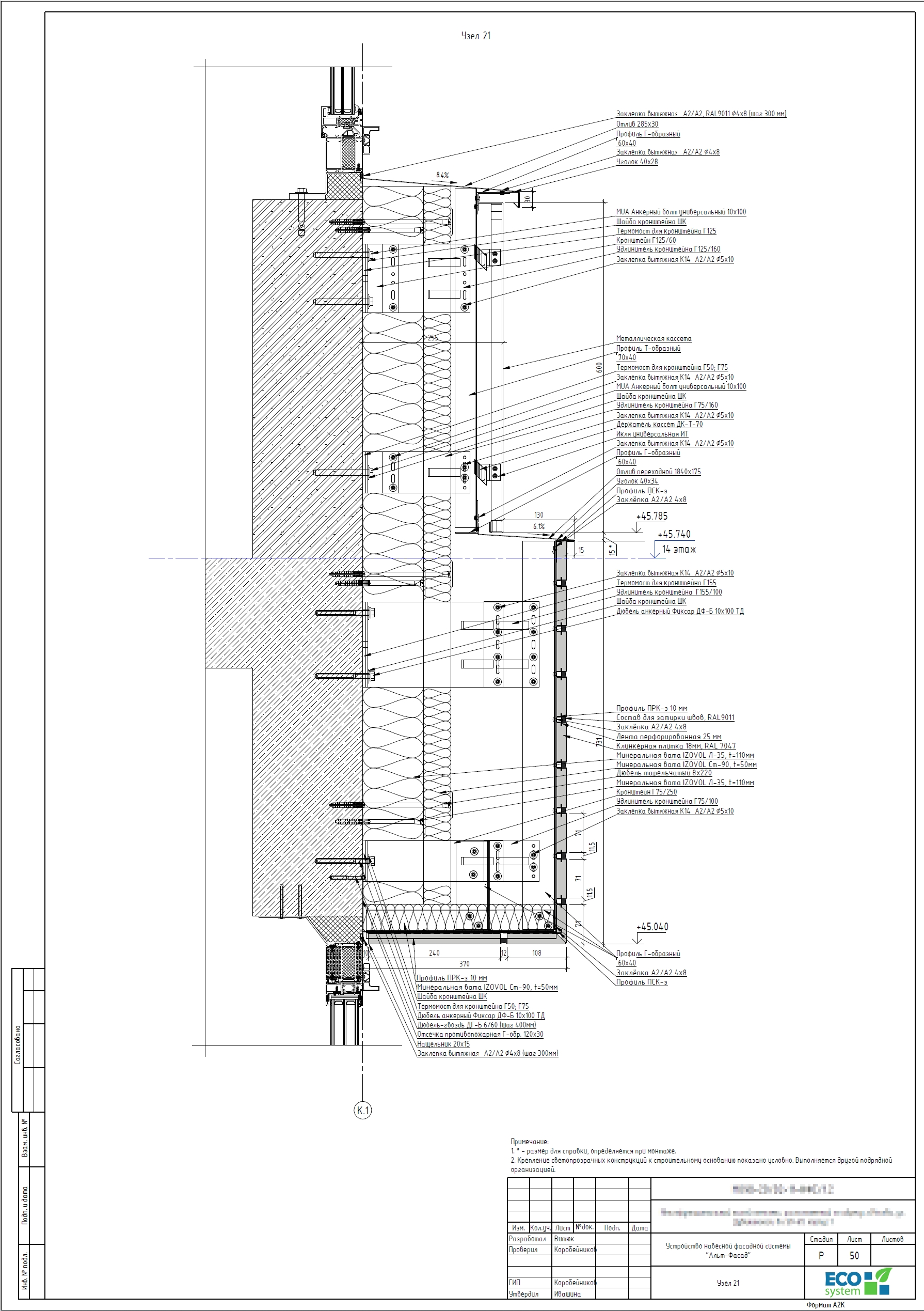
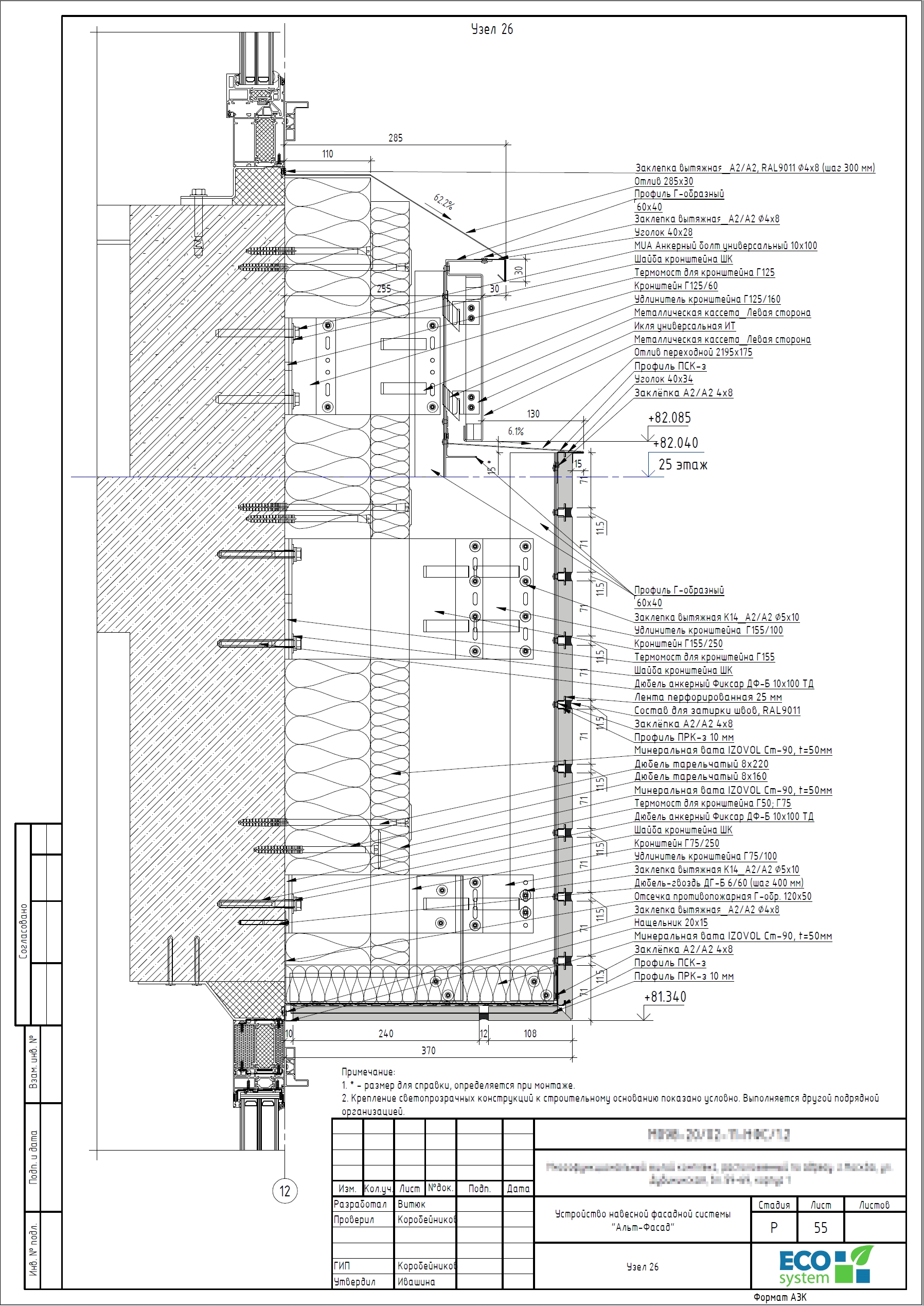
Компания разработала семейства компонентов навесной фасадной системы (НФС) для рабочего проектирования, которые можно скачать у нас на портале. Компоненты разработаны в алюминиевой и стальной системах, что позволяет выполнить рабочий проект различной сложности и с любой облицовкой. Компоненты подсистемы разработаны таким образом, что позволяют с лёгкостью получить из модели монтажные схемы, узлы, спецификации.
Стоит отметить, что компоненты, полученные при помощи информационного моделирования, практически ничем не отличаются от тех, которые создавались в CAD-системах или на кульмане. Ниже представляем узлы, созданные в BIM-среде.



Учитывая тот факт, что узлы получают из 3D-модели, компания «Альтернатива» решила пойти дальше и после ряда чертежей создавать листы с трёхмерной визуализацией отдельных участков здания.

Поэтапно «раздевая» вентилируемый фасад до подсистемы, получилось создать визуализацию с разным содержимым. На такие виртуальные MOCKUPы Альтернатива снимает короткие ролики, на которых эти участки вращаются, что помогает пользователю сформировать более наглядный образ.
Так как кроме самой модели заказчику передаётся проект в формате PDF, то на листы вставлены активные ссылки, перейдя по которым можно посмотреть ролики. Для монтажников предусмотрен QR-коды, которые можно отсканировать смартфоном или планшетом и также посмотреть видеообзоры.
Представим, что в обозримом будущем такие виртуальные участки можно будет создавать в дополненной реальности (AR) и монтажник сможет через экран планшета или специальные очки подробно рассматривать все детали и узлы прямо на стройплощадке. Возможно, это появится в будущих проектах компании «Альтернативы». Следите за обновлениями.