Проект аэропорта Платов в Ростове-на-Дону

Концепция
Рассказывает Алекс Битус, главный архитектор проекта:
«В процессе разработки архитектурной концепции мы придерживались идеи аэропорта как моста между городами, моста, соединяющего два берега реки. Арки, формирующие кровлю терминала, стали метафорой моста в небо.
Во время авторского надзора я жил в Ростове-на-Дону, каждый день присутствовал на стройке, встречался и разговаривал с жителями города. Благодаря этому ко мне пришло понимание, что их интерпретации немного отличаются от тех образов, которые были заложены нами.

Алекс Битус рассказывает о проекте аэропорта в Ростове-на-Дону, 2017 год. Источник фото портал 1rnd.
Кто-то при взгляде на здание аэропорта, действительно, видел мосты, кто-то — волны Дона или холмы степи. Мне кажется, что каждая версия по-своему хороша. Здание не диктует видение, благодаря этому возникает пространство для воображения.
Соцреализм, когда искусство должно было быть понятным, давно в прошлом. Сейчас все иначе — искусство оставляет место для свободы видения, каждый может трактовать его как нравится, в зависимости от настроения и возраста.
Мне кажется, в проекте аэропорта должна ощущаться принадлежность к месту, ведь это не временный павильон, он будет стоять на конкретном месте несколько десятилетий и формировать среду вокруг. Даже если терминал располагается в чистом поле, так или иначе он будет обрастать инфраструктурой, вокруг него появятся новые объекты, которые, я уверен, будут объединены идеей, продиктованной аэропортом» (Источник)
Реализация
Проект аэрокомплекса включал в себя новый международный и внутренний терминалы, отель.
_63ceb40a69fa5.jpg?size=0x-)
Параболические арки на кровле родились из идеи, которую выше описал главный архитектор проекта Алекс Битус. Три арки как бы приподнимаются и выступают на площадь перед терминалом. Они обозначают маршруты для пассажиров, направляющихся к зонам прилета и вылета.

Ландшафтный водный объект, соединяющий терминал с железнодорожным вокзалом, автостоянкой и отелем — отсылка к реке Дон.

Внутри терминала световой люк шириной 8 метров, который визуально разделяет пространство, обозначая международную и внутреннюю зоны перелетов.

Белые опорные стойки отделяются от центральной колонны и проходят зигзагами через здание терминала.
BIM
Одна из основных задач проекта — сделать так, чтобы в будущем можно было бы расширить аэропорт без ограничений в работе действующего терминала.
Архитекторы, проектировщики, конструкторы и подрядчики базировались в разных странах: Великобритания, Германия, Россия. Поэтому важным условием успешной реализации было использование BIM-подхода. С его помощью наладили онлайн координацию специалистов, находящихся в разных локациях. Каждый проектировщик мог просматривать одно и то же интегрированное графическое изображение на своем компьютере.

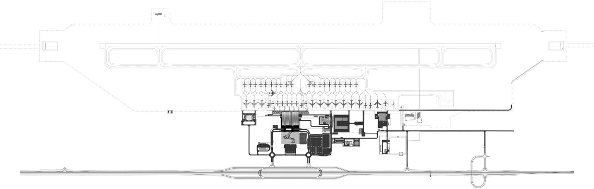
Ген.план аэропорта «Платов»
Поскольку срок сдачи объекта был обозначен максимально жестко, авторы сделали акцент на моделировании монтажных работ во времени. Это позволило контролировать дедлайны строительства.
Авторы Twelve architects разработали BIM-модель аэропорта в Revit. Модель была видна всем участникам процесса и сочетала геометрию и данные элементов произведенных в ArchiCAD и Revit.

Пассажирский терминал
Главный плюс от использования BIM в проекте заключался в устранении различных коллизий и, как следствие, в более эффективном процессе проектирования.
После завершения строительства модель передали оператору аэропорта для возможности масштабирования. Расширить смогут не только здание — в будущем планируют построить вторую взлетно-посадочную полосу. Для этого понадобится модель уже построенного аэропорта, чтобы у архитекторов и проектировщиков была подробная и хорошо структурированная информация о существующем объекте.





Аэропорт «Платов» в цифрах:
- расположен в 29 км от города, на территории в 535 га;
- длина взлетно-посадочной полосы 3,6 км, ширина — 45 м;
- ВПП оборудована по II категории ИКАО, принимает суда при видимости всего 300 м;
- Аэропорт класса «Б», способен принимать Boeing 777‑300ER;
- Рассчитан на 45 мест для стоянки самолетов;
- Площадь пассажирского терминала — 50 тыс. кв. м;
- Пропускная способность — 1740 пассажиров в час, в год — 5 млн.;
- Оснащён 9-ю телескопическими трапами, способными менять высоту;
- Имеет 32 стойки регистрации и 20 выходов на посадку;
- Площадь грузового терминала — 5500 кв. м, возможность – до 898 тонн груза в сутки;
- 4 багажных карусели обрабатывают более 2000 тысяч сумок в час.