Тепловой шлюз КВУ-С от «Вентум»: технические и геометрические характеристики

Тепловой шлюз КВУ-С — инновационный компонент вентиляционных систем. Предназначен для минимизации времени прогрева лопаток клапана КВУ-С и обеспечения эффективности прогрева лопаток клапана.

Выполняет отсечение притока охлажденного воздуха из пространства вентиляционного канала и (или) пространства между декоративной решеткой и лопатками клапана при прогреве клапана КВУ-С.
Тепловой шлюз устанавливается с двух сторон клапана КВУ-С, установленного в вентиляционном канале, либо с двух или с одной стороны клапана, установленного на концевом участке вентиляционного канала или в стеновом проеме.
По геометрическим параметрам тепловые шлюзы КВУ-С соответствуют требованиям ГОСТ Р 70349-2022 «Вентиляция зданий. Воздуховоды. Классификация и основные параметры».

Таблица 1. Классификация тепловых шлюзов КВУ-С по признакам
Система обозначения

Рисунок 1. Пимер обозначения теплового шлюза КВУ-С
Ширина 500 мм, высота 400 мм, общепромышленного исполнения, климатического исполнения для эксплуатации в районах с умеренным и холодным климатом.
Конструкция

Рисунок 2. Общий вид теплового шлюза КВУ-С
Тепловой шлюз КВУ-С — неразборный. При необходимости, в процессе эксплуатации, греющий кабель и соединительную коробку можно заменить.
Утепленный корпус теплового шлюза 1 выполнен в одном из конструктивных исполнений — О, К (смотрите таблицу 1).
Внутри корпуса установлен греющий кабель. Снаружи установлены четыре защитные крышки 2.
К соединительной коробке 3 через отверстие 4 в левой крышке корпуса, присоединяется греющий кабель.
Четыре монтажных отверстия 5, продолговатого сечения, предназначены для закрепления изделия при монтаже.
Монтажные и габаритные размеры тепловых шлюзов КВУ-С соответствуют размерам клапанов КВУ-С соответствующих типоразмеров.
Возможно изготовление тепловых шлюзов КВУ-С любых индивидуальных размеров.

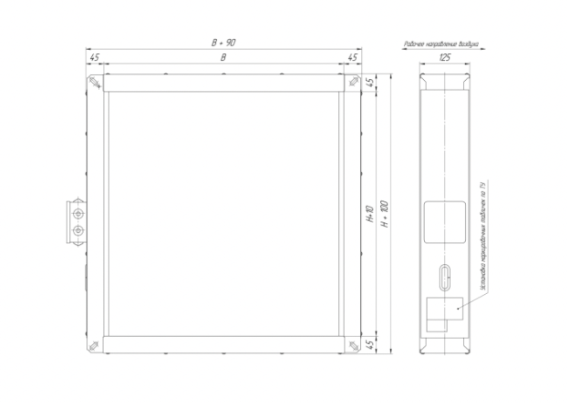
Рисунок 3. Внешние габаритные размеры тепловых шлюзов КВУ-С
Ширина всех типоразмеров тепловых шлюзов КВУ-С равна 125 мм. На торцах фланцев отсутствуют выступающие элементы.
Монтаж тепловых шлюзов КВУ-С осуществляется по отверстиям в торцевых фланцах. Фланцы тепловых шлюзов КВУ-С соответствуют по монтажным размерам клапанам КВУ-С соответствующих типоразмеров.
Размерный ряд

Таблица 2. Размерный ряд тепловых шлюзов КВУ-С и площадь живого сечения

Таблица 3. Показатели массы
Коэффициент местного сопротивления тепловых шлюзов КВУ-С к рабочему сечению воздуховода для всех типоразмеров ζ=1.
Монтаж
Тепловой шлюз КВУ-С устанавливается к клапану КВУ-С, установленному в канал воздуховода, на конечный участок воздуховода, в проем ограждающей конструкции.
При установке в проем ограждающей конструкции нужно использовать монтажные планки (не входят в комплект поставки) для закрепления клапана или тепловых шлюзов. Закрепление на монтажные планки следует выполнять до заделки установочного проема.
Для закрепления тепловых шлюзов к клапану КВУ-С использовать монтажные отверстия, выполненные во фланцах. Применяемый крепеж – М8 (не входит в комплект поставки).
На рисунке пример установки теплового шлюза с двух сторон клапана КВУ-С в проем ограждающей конструкции (стеновой проем).

Рисунок 4. Пример установки теплового шлюза.
Другие статьи производителя:
Что нужно учитывать при проектировании системы промышленной вентиляции?